
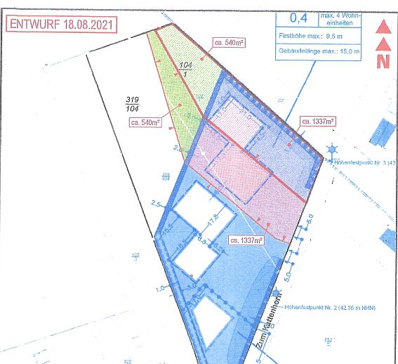
Das rechte Grundstück (rot umkreist) mit einer Fläche von 1337 qm steht zum Verkauf (blau unterlegt ist die Fläche des Bebauungsplanes).
Das darin eingezeichnete Baufeld hat eine Breite von 17,00 m und eine Länge von 21,00 m.
Die angrenzende Grünfläche von 540 qm steht nicht zum Verkauf, kann auf Wunsch gepachtet werden.
Es gelten weiterhin die Bestimmungen des Bebauungsplanes B209 der Stadt Osterholz-Scharmbeck.
Wohnen in Westerbeck! Ruhige, ländliche trotzdem verkehrsgünstige
Wohnlage.
Nur ca. 3 km von der Innenstadt Osterholz-Scharmbeck entfernt, liegt das Grundstück in traumhafter Lage.
Die Kreisstadt Osterholz-Scharmbeck verfügt über eine sehr gute Infrastruktur mit Kindergärten, allen Schulformen, Ärzten sowie Einkaufsmöglichkeiten für den täglichen Bedarf.

